Sun path
I’ve also been looking into the sun path as this may affect the space
Reference: http://sun-direction.com/city/43287,auckland/
Contours
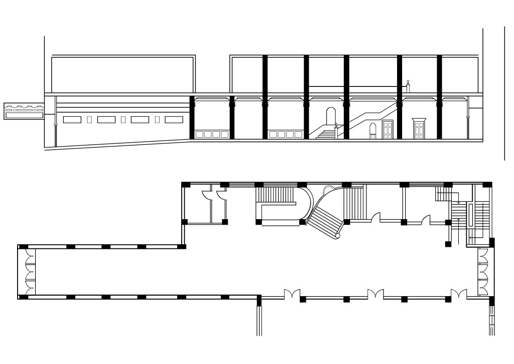
Section & floor plan
Accessible
Elevator
Toilets
Ramp/Slope
A ramp is comprised of horizontal sloped runs connected by level landings between runs. Any slope greater than 1:20 and less than 1:12 along an accessible route shall be considered a ramp that is required to comply with ADA accessibility codes and compliances. The least possible slope should be used whenever possible.
The maximum allowable slope in any new construction is 1:12 with a maximum rise of 30” (76.2 cm) without a landing. A ramp with a slope between 1:12 and 1:16 can have a maximum horizontal length of 30’ (9.14 m) without a landing. A ramp with a slope between 1:16 and 1:20 can have a horizontal run up to 40’ (12.19 m) before requiring a landing.
Reference: https://www.dimensions.com/element/ramp-slopes
By looking at the model I have made of the site I then played around with where I think the surface I have created would look better on
Applied on the floor:
Applied on the wall:
If I ever want to apply it onto a wall I don’t want to apply it on every wall as it may look over crowded, so it has to be only applied onto a singular continuos wall. While the other walls will have a violet shade to it.
In the end I decided to apply the surface that I have created on both east and west side of the foyer space
For my final design I have decided to leave both the entrance from Queen St and Lorne St so this way there’s more than one way to get into the site and as the Queen St is the main St of Auckland CBD





























